



RETROFaçade
Daylight deflection systems are suitable for installation in protected cavities
- on the inside of insulating glazing or
- on the outside of insulating glazing behind a baffle pane
The aim is to avoid absorption and heat development in window/facade frames and to either reflect the radiation penetrating through the glass facade back outwards or to redirect it inwards for improved room illumination.
This task can be optimally realized as follows:
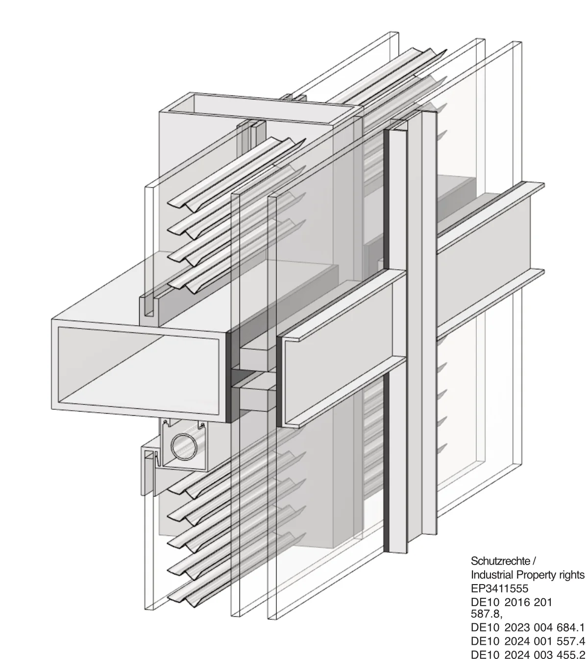
- Glazing bead installation in the window area
- Arrangement of the systems on the outside of a window
- Arrangement of the blinds within a mullion-transom construction
- Arrangement of façade glazing behind a baffle plate.
Inquire
Window and façade concepts with RETRO technology
Perfect Window
The glazing bead installation of light control systems on the inside of a window is an optimal solution from an energy point of view. The incident radiation is reflected directly to the outside by means of light deflection.
Smart Window
The systems are installed on the outside of the insulating glazing behind a baffle pane. These windows are characterized by minimal energy input from secondary heat radiation and enable the lowest g-values. High-quality light control systems can be used, which are protected behind the outer baffle pane, particularly against wind loads and soiling. In contrast to conventional external sun shading, these systems also provide glare protection regardless of external weather conditions.
Internally doubled facade
In mullion-transom constructions, the blinds should be arranged directly behind glass in the construction area of the mullions and transoms. Additional internal glazing reduces secondary heat radiation and improves the U-value of a façade. This design variant is therefore particularly suitable for energy-efficient refurbishment.
Closed Cavity Façade (CCF)
The Closed Cavity façade is an alternative to the rear-ventilated façade and is particularly suitable for installing high-quality daylight control systems on the outside of the insulating glazing. The air cavity is permanently condensation-free and protected from external weathering.








